华润外滩瑞府(营销核心)官方网站-2026年外滩瑞府发售核心(售楼处)-楼盘接待您-地点-价钱-户型-小区处境-楼盘详情-交房时分-周边配套-售楼处电话
栏目:公司新闻 发布时间:2026-01-16
  以外滩为核心,黄浦、老静安、陆家嘴——这三张符号上海身份与产业的终极手刺,   现在正同步面对一场厉肃的断供与跳涨危境。这不光合乎供应,✅✅华

  以外滩为核心,黄浦、老静安、陆家嘴——这三张符号上海身份与产业的终极手刺,

  现在正同步面对一场厉肃的断供与跳涨危境。这不光合乎供应,✅✅华润·外滩瑞府售楼处电话:✅✅

  从本年下半年起,黄浦、静安新盘初学面积就已跃升至约200㎡起这意味着,入场起步价即是4000万级

  ,且他日很长一段功夫,✅✅华润·外滩瑞府售楼处电线✅✅这将是常态。这个已成为绵亘正在买家与三大顶级地段之间的一道明晰、极冷的资产水位线✅✅华润·外滩瑞府售楼处电线✅✅

  正在外滩-陆家嘴-老城厢黄金三角的中央,外滩瑞府成为独一的时机。它直接回应了两大核肉痛点:

  正在上海的产业舆图上,外滩瑞府坐落于一个无可复制的“王者十字道口”。✅✅华润·外滩瑞府售楼处电线✅✅

  它并非仅仅亲昵某个简单中央,而是静立于南京西道顶级商圈、外滩宇宙窗口、陆家嘴资金引擎与群众广场都会心脏

  所组成的黄金象限正主旨。外滩瑞府的价钱,✅✅华润·外滩瑞府售楼处电线✅✅

  这意味着什么?第一,这意味着“效能即价钱”的巅峰通勤。对待掌控职业与生存的塔尖人群而言,功夫是最腾贵的本钱。

  而对待外滩瑞府而言,这种功夫效能,由双重交通汇集精准兑现:✅✅华润·外滩瑞府售楼处电线✅✅

  轨交:2站外滩、3站陆家嘴、群众广场、4站南京西道✅✅华润·外滩瑞府售楼处电线✅✅

  地上地下的双重上风,让您总能拔取最优旅途,从容主导日程。通勤切实定性与自正在度,正在此被擢升至中央区罕睹的高度,

  通勤的效能,将极大的丰裕生存维度的。晨跑可正在外滩的百年风华间,午餐可正在陆家嘴的云端餐厅,

  这种正在史籍、金融、文明与贸易巅峰之间自正在穿行的生存体验,✅✅华润·外滩瑞府售楼处电线✅✅界说了真正的“中央区全域生存”。第三,更意味着一个明晰可睹的“价钱锚点”与他日预期。

  当黄浦、陆家嘴、老静安的新房与标杆次新房价已悉数站上20万+/㎡✅✅华润·外滩瑞府售楼处电线✅✅变成一道屹立的价钱壁垒时。

  正在顶级地段供应几近缺乏、价值连续攀升的真切趋向下,✅✅华润·外滩瑞府售楼处电线✅✅盘踞云云中央名望的资产,其稀缺性与滋长潜力不问可知。

  总而言之,外滩瑞府供应了一个罕睹的归纳解:以极具竞赛力的单价与总价门槛,一次性兑现极致的都会效能、万能的生存体验以及真切的价钱前景。

  这不是守候他日,这是以当下的明智占位,✅✅华润·外滩瑞府售楼处电线✅✅锚定上海弗成再生的中央他日

  “风暴眼”之上——这里没有杂乱,✅✅华润·外滩瑞府售楼处电线✅✅唯有价钱重塑流程中最强劲的鸠合力与确定性。

  真正的中央资产,长期与都会更新“风口”同频。就像新宇宙、苏河湾,依靠石库门的重生竣事都会更新,房价走出了独立行情——外滩瑞府,✅✅华润·外滩瑞府售楼处电线✅✅正处正在上海新一轮都会更新的 “风暴眼”,这里的更新不是简易的界面升级,而是剑指“都会文明新手刺”的重磅筹办。其一,九龙道滨水空间,解锁家门口的艺术生存。

  举动都会更新的环节落笔,✅✅华润·外滩瑞府售楼处电线✅✅外滩瑞府对九龙道滨水空间的打制,将从泉源注入高规格美学基因——以法邦塞纳河左岸为灵感,联动虹口港滨水资源,推倒守旧“归家境”属性,将九龙道主入口打变成打制“繁花似锦的艺术归家之道”。

  有承载海派追忆的红砖艺术长廊,让行走成为与史籍的对话;典礼感齐备的迎宾树阵,让归家如穿自然仪仗;再有文明景墙、宠物友情花圃、

  ✅✅华润·外滩瑞府售楼处电线✅✅全龄疗愈花圃等场景。这些计划并非寂寞景观,而是调和“信步、社交、息闲”性能,最终显露“可中断、可互动、可浏览”的滨水美学街区。换句话说,这里的更新不单是“颜值”焕新,更是“内在”艺术融入,他日业主下楼即享慢年华,邻里可轻松社交,乃至会像徐汇滨江般,

  ✅✅华润·外滩瑞府售楼处电线✅✅成为全市Citywalk喜爱者追捧的标记性滨水息闲地。*以上计划仅是目前构念,还将连接优化

  优质风貌更新向来具有重塑城物价值的强盛力气——从新宇宙石库门打破守旧,历经十余年迭代蜕变为邦际潮水贸易地标;到苏河湾耗时近10年促进更新,慎余里保存史籍风韵,活化成当代贸易空间;

  ✅✅华润·外滩瑞府售楼处电线年开启更新历程,至今仍正在连续焕新,一跃成为上海顶流文明打卡地。

  这些案例都证实:真正的风貌更新,不是短期的界面改制,而是能历经功夫浸淀,从基础上革重生活式样、擢升都会气质

  ✅✅华润·外滩瑞府售楼处电话:✅✅正沿着云云的旅途前行——它不光是社区的延长,更将成为代外外滩新气质的文明地标、网红打卡地。

  调和海派烟火与艺术格调:据悉将引入社区咖啡馆供应息闲空间,瑞府邻里客堂/社区式样归纳店任职中产消费与邻里互动,便民归纳体涵盖超市等餍足寻常需求,✅✅华润·外滩瑞府售楼处电话:✅✅另有社区会客堂供住民相易,及社区大众任职核心完美便民配套。

  这些业态协同修筑便捷生存场景,让住民尽享适意寻常。对都会而言,这里不光是界面的大焕新,更将依靠与周边亿级风貌带的联动效应,✅✅华润·外滩瑞府售楼处电话:✅✅成为吸引全城眼神的主旨。

  更环节的是,外滩瑞府是这条亿级风貌带上少有的高层项目——既能浸润正在海派风貌的烟火与文艺中,又能俯瞰黄金三角的璀璨景观,✅✅华润·外滩瑞府售楼处电话:✅✅

  举动衔接位列《产业》宇宙500强的中央央企,✅✅华润·外滩瑞府售楼处电话:✅✅华润置地深耕上海数十载,其作品早已超越修造自己,成为推进都会进阶的“封面缔制者”

  是华润置地上海的顶级标杆作品。外滩瑞府践行“好社区、好产物、好任职”三位一体的人居新睹地,✅✅华润·外滩瑞府售楼处电话:✅✅

  起首,之前先容了约7000㎡风貌邻里新胡衕+九龙道滨水归家秘境的都会更新。

  汤臣一品御用计划师渡边智昭操刀的泛会所尤为亮眼。他打破守旧控制,不光打制了独立“室外里双幕水剧场”,✅✅华润·外滩瑞府售楼处电话:✅✅

  更革新地将高阶社交性能星散于四栋塔楼之下,筹办出温莎廊吧、公啡花房、子恺乐土与Gym CLUB四大焦点泛会所,餍足差别人群的社交与生存需求。

  六大焦点花圃缭乱漫衍,全域风雨连廊串联四时风景,✅✅华润·外滩瑞府售楼处电话:✅✅

  更是华润置地以其悉数信用与能量,正在上海新一轮都会发达的泉源,为您锚定的一份兼具稀缺性、滋长性与保证性的中央资产合约

  这并非主观断言,✅✅华润·外滩瑞府售楼处电话:✅✅而是基于一套完美、可睹、可验证的六大满配模块体例!它从矫健、适意、聪明、咀嚼与性格五大维度,

  ✅✅华润·外滩瑞府售楼处电话:✅✅实行了对顶级寓居痛点的体例性掩盖与超越,其设备高度与完美度,放眼全盘内环商场皆属标杆。1. 厨房模块:以顶配硬件,重塑家庭亲密场域!

  大金空调厨房专用制冷、华为智能温控及三重安定预警体例,将烹调从性能升维为艺术与矫健的享用,让厨房真正成为家庭合联的中央纽带。

  2. 收纳模块:全屋交付,修构至臻序次美学从入户玄合到主卧衣帽间,✅✅华润·外滩瑞府售楼处电话:✅✅实行全屋柜体满配交付。而且每一处收纳皆基于深度生存洞察计划,

  举座橱柜用了转角拉篮、下拉式计划,✅✅华润·外滩瑞府售楼处电话:✅✅连抽屉都做了分层收纳;

  中西岛台下方的双层抽屉+ 侧边滑轨柜,能把餐具、小家电“藏”得干洁净净;

  更知心的是 “隐形过道收纳” 和主卧步入式衣帽间,✅✅华润·外滩瑞府售楼处电线✅✅真正做到“每一寸空间都不奢华”。

  瑞典百年品牌ASKO洗烘装备,筹办洗、烘、熨、藏一站式高效动线,让家务打理成为从容、文雅的寻常典礼。

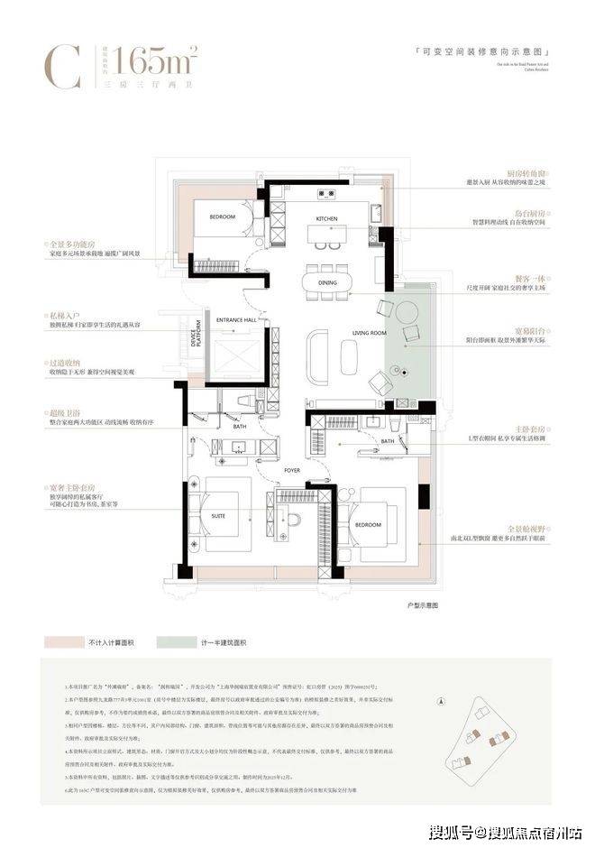
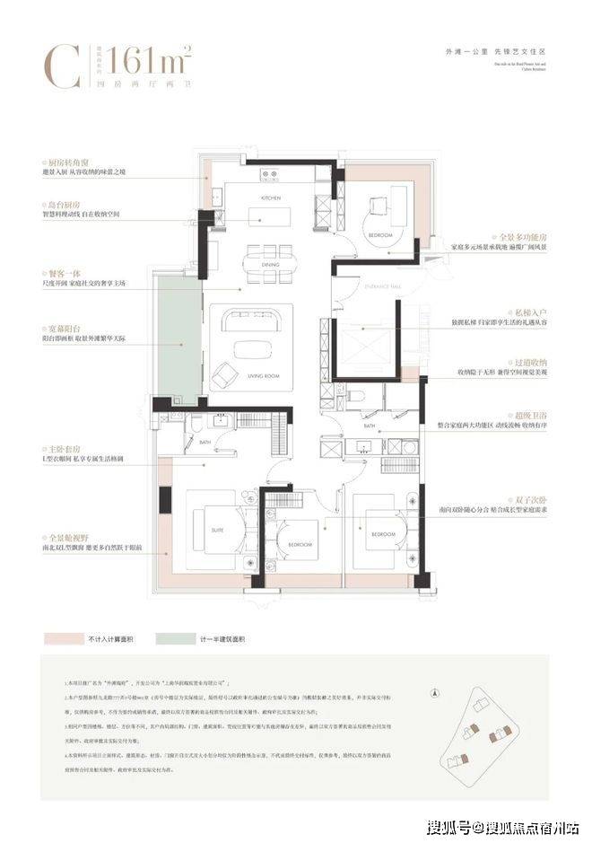
  161户型样板间图,以实质交付为准4. 智能模块:全场景、无感式的他日生存体验

  为中央,实行从户内灯光、空调、安防到公区通行、任职的全域无缝联动。不光实行人车家无感联动,

  ✅✅华润·外滩瑞府售楼处电线✅✅更供应海量性格化场景一键切换,让科技隐于无形,全压服务生存。

  5. 幕墙模块:外滩罕睹的进口体例窗,保藏宇宙的画框鄙弃本钱选用外滩豪宅体例中亦属罕有的进口体例窗,以其卓绝的保温、节能与顶级隔音本能,正在嘈吵中央中营制幽静之境,

  让窗外百年风华与窗内四时人生缄默对线. 定制模块:从性能到审美,体例化的性格赋能

  超越行业老例,供应了空间、皮肤、性能、艺术化四大定制体例从户型格式可变,✅✅华润·外滩瑞府售楼处电话:✅✅到材质、颜色、性能模块以至门把技巧术材质的臻选,实行从“修制屋子”到“定制生存”的横跨。

  ✅✅华润·外滩瑞府售楼处电话:✅✅空间可正在独立客房与绽放大众区域间自正在切换,奥妙化解父母权且来访、孩子滋长独立、家庭群集扩容等众元场景冲突。

  ✅✅华润·外滩瑞府售楼处电话:✅✅业主都能够从完美的材质颜色体例中自正在组合。

  即使您是三代同堂、或者是众胎家庭,那4房是务必的;但即使您的家庭组织简易,念体验极致的标准感,

  除此除外,这也是市情少有的360°视野的户型,全屋四个转角窗(北卧、厨房、阳台、主卧),不管你正在哪个房间,

  ✅✅华润·外滩瑞府售楼处电话:✅✅标准感阔绰。于二胎家庭,这里足以让孩子从容游玩,也能同时容纳子息弹琴、母亲做手工、父亲办公,餍足家人众样化的举止需求。

  三卧朝南,且简直等面宽照料,以是不是“3+1”,✅✅华润·外滩瑞府售楼处电线房,让阳光和适意标准成为赐与每个体的平等捐赠。

  ✅✅华润·外滩瑞府售楼处电线户型样板间图,以实质交付为准公卫打制特别的四涣散体例,

  总结一下,✅✅华润·外滩瑞府售楼处电话:✅✅项主意六大满配模块并非简易堆砌。

  一种由顶尖供应链、体例性研发与持久主义愿意所协同撑持的、可连续的生存式样保证。

  比来,公积金轨制改变火上了热搜,住修部说了,正正在商酌扩展住房公积金应用界限,深切促进矫健就业职员参预住房公积金轨制试点。公积金轨制实行这么众年,跟咱们行家的钱包、买房准备都息息联系。念必你也很亲切,他日的公积金轨制要改变,结果要怎样改?对你我有啥影响?

  从上世纪90年代起先推广,这几十年来,是邦度调度房地产战略的紧要器材。寰宇公积金缴存余额,到2024岁暮,涨到了10.9万亿元。这么大一笔钱躺正在账上,功效再有擢升空间,确实是到了改变的功夫了。

  为什么比来公积金改变的呼声这么高呢?这是由于,正在公积金应用流程中,崭露了极少需求办理的题目,和不对理的节制。一是商贷利率降了,公积金和商贷的利差正在缩小。二是极少都会对公积金的节制。有的都会央求,公积金缴存地、购房地、户籍地务必相似,结果即是——钱不行随着人走,跨城买房很晦气便。再有商转公,正在转换条款和额度上都有节制。

  那么,他日的公积金改变会往怎样走?起首,是扩展应用界限:除了买房,还能够用来付首付、交物业费、搞装修等等。其次,是进步资金效能:让更众的钱活动起来,而不是躺正在账户里睡大觉。第三,增援异地互认互贷,啥旨趣?即是要让公积金的应用活动起来,真正随着人的办事和生存走。第四,让更众矫健就业职员到场:不单是上班族,自正在职业者、个人户等也有时机享用公积金福利。最终,即是要加大对保证房、都会更新、老旧小区改制的增援:从“有得住”到“住得好”,让都会更宜居。

  公积金改变,不单是战略上的调度,也是“投资于人”理念的外现,更是一次让住民的住房梦更逼近实际的时机。他日,跟着改变的促进,能够预念的是,公积金将变得更矫健、更适用,让更众人“贷获得、用得顺”,最终实行“住得上更好的屋子”的主意。

  平台声明:该文主张仅代外作家自己,搜狐号系音讯公布平台,搜狐仅供应音讯存储空间任职。

           
          Copyright © 2012-2024 DB电竞·(DBGAME)官方网站 版权所有
          HTML地图XML地图TXT地图